
Meet

Meet

Featured

Search

Client

Team

Team

Agent/Client

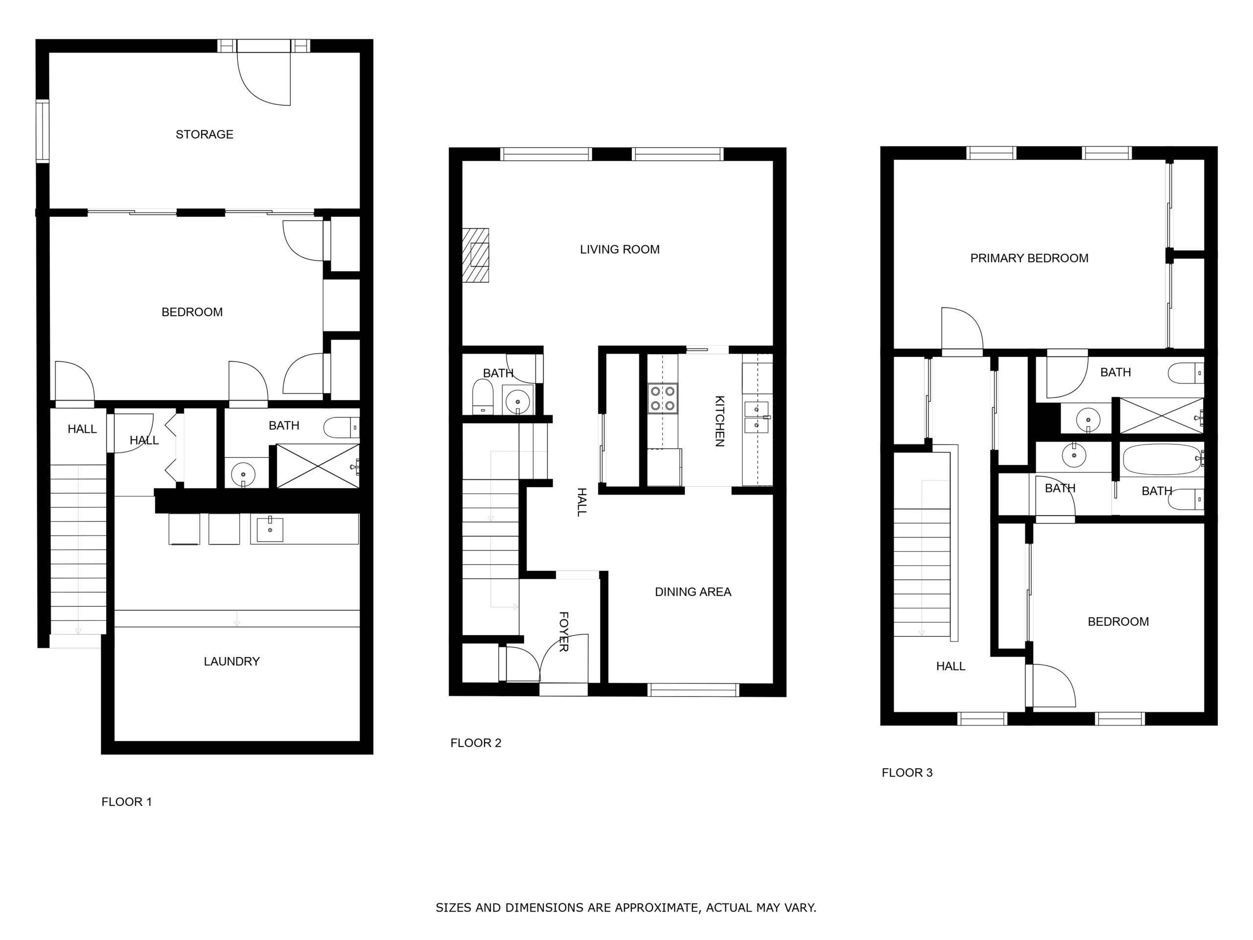
Welcome to Hidden Lake where low maintenance living awaits! This fantastic condo is move-in ready w/ 3 incredible levels of space & tasteful updates. Centrally located for your convenience, this community features a picturesque lake & community pool in a serene setting, just minutes away from your favorite places! The main level features updated wood flooring throughout for easy upkeep & updated style! The dining area is right off the kitchen & great for entertaining. The half bath is on the main for convenience & the living rm is spacious! Upstairs features 2 bdrms – each w/ their own private ensuite bath, & updated tile shower! Downstairs is the laundry rm, bdrm & private update bath! The laundry room, unlike other units, gives you extra storage space and could be used as a craft room, play-room or more! The lower level also gives access to the screened porch! This layout offers maximum flexibility for a family, individual or even a roommate situation.